Hjultorget 20, Insjön
Hjultorget 20
Insjön
Lokal
Rum:
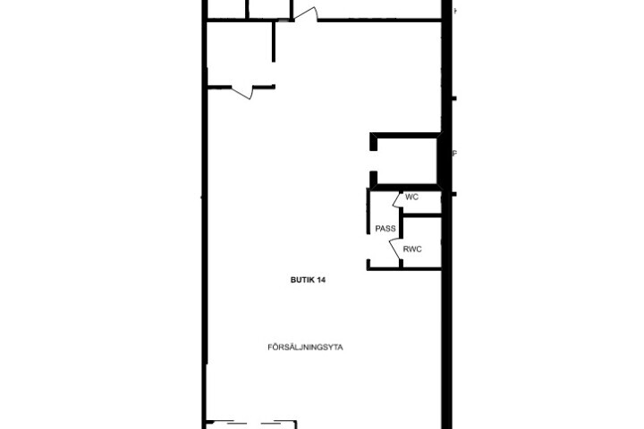
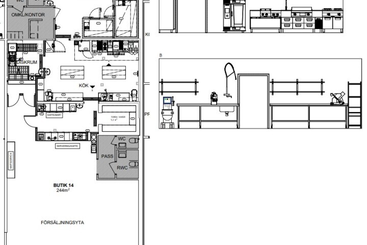
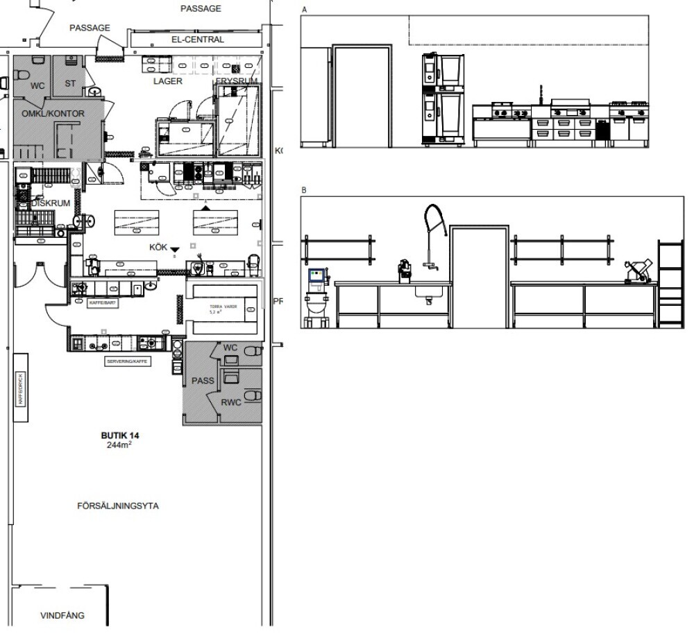
Uthyrbar yta: 244 kvm
Område: Insjön
Andra hyresgäster:
Oslipad diamant belägen mitt i Hjultorgets köpcentrum. Denna lokal är idag tomställd och färdigställs i samråd med ny hyresgäst. Endast fantasin sätter stopp för denna lokals möjliga utformning! Lokalen lämpar sig för restaurang eller café och omfattar ca 244 kvm fördelade på försäljningsyta, köksyta, personalutrymmen och lager. Suveränt läge mitt i köpcentrumet men goda dragplåster till grannar som t ex Hemköp, Doz apotek, Iittala outlet, Scorett, Kicks, Haglöfs och Jysk. Varmt välkommen att förverkliga din restaurangdröm. För mer information, vänligen kontakta: Carolina Hedlund, carolina.hedlund@skoglunds.se, 0247-25 60 63 (Bifogas förslag på grundutförande för ett restaurangkoncept bland biderna)
Är du intresserad av Hjultorget 20?
Kontakta aktuell förvaltare som du hittar på föregående sida eller via länk https://skoglunds.se/kundservice/hitta-kontakt/#fastigheter



