Hjultorget 16 (butik 7), Insjön
Hjultorget 16 (butik 7)
Insjön
Lokal
Rum:
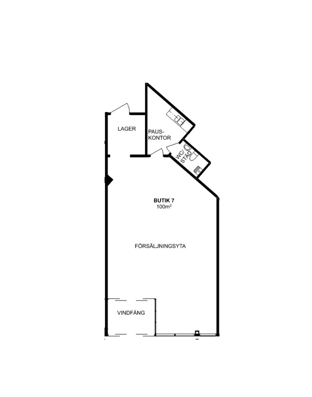
Uthyrbar yta: 100 kvm
Område: Insjön
Andra hyresgäster:
Det sägs att ’de bästa sakerna kommer i små paket’. Det stämmer för den här fina och välplanerade butikslokalen om ca 100 kvm fördelat på ca 80 kvm säljyta samt 20 kvm lager och personalutrymmen. Lokalen är öppen och luftig med högt i tak som passar perfekt till moderna butikskoncept. Läget mellan optikern och Kicks samt de andra grannarna som t ex Scorett, Haglöfs, Jysk och Clas Ohlson ger fina möjligheter att locka in kunder. Har du en dröm om en mindre butik, utställning, galleri eller liknande – tveka inte att höra av dig, detta är din chans!
För mer information, vänligen kontakta:
Carolina Hedlund, carolina.hedlund@skoglunds.se, 0247-25 60 63
(Vissa bilder kan vara stylade med hjälp av AI för att skapa ett visualiseringsförslag och kan därmed skilja från verkligheten)
Är du intresserad av Hjultorget 16 (butik 7)?
Kontakta aktuell förvaltare som du hittar på föregående sida eller via länk https://skoglunds.se/kundservice/hitta-kontakt/#fastigheter







