Hjultorget 13, Insjön
Hjultorget 13
Insjön
Lokal
Rum:
Uthyrbar yta: 40 kvm
Område: Insjön
Andra hyresgäster:
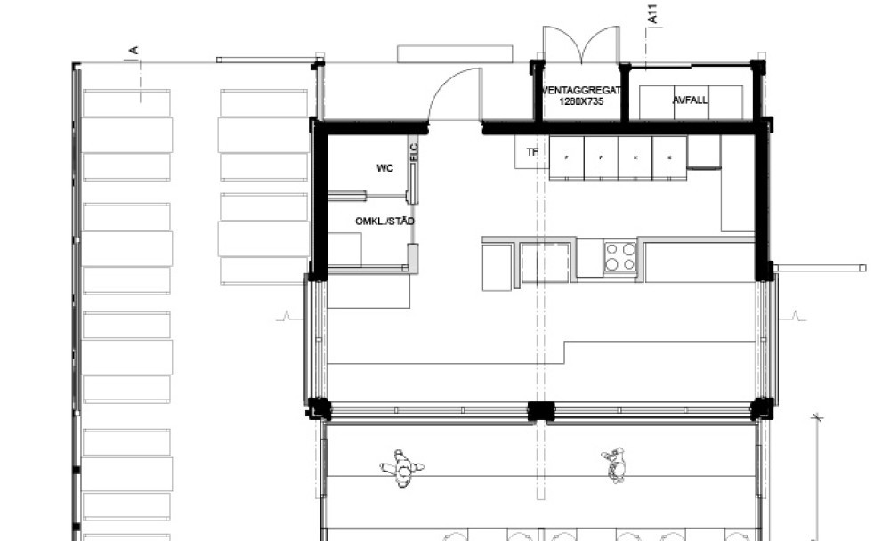
Drömmer du om att prova ett serveringskoncept under bästa försäljningsperiod? Då har du hittat rätt! Denna lokal om ca 40 kvm erbjuder möjlighet för sommarförsäljning (maj – september) av enklare maträtter, smörgåsar, glass, fika etc. Runt lokalen finns trädäck med gott om utrymme för sittplatser. Här kan besökarna slå sig ner i lugn och ro med något gott mellan butiksbesöken. Lokalen har bästa läget på Hjultorgets köpcentrum mitt emellan stora aktörer som Clas Ohlson och Jysk. Då fettavskiljare saknas finns ej möjlighet till matlagning på plats. Ev finns dock möjlighet till portabel lösning. (Vissa bilder kan vara stylade med hjälp av AI för att skapa ett visualiseringsförslag och kan därmed skilja från verkligheten).
För mer information, vänligen kontakta:
Carolina Hedlund, carolina.hedlund@skoglunds.se, 0247-25 60 63.
Är du intresserad av Hjultorget 13?
Kontakta aktuell förvaltare som du hittar på föregående sida eller via länk https://skoglunds.se/kundservice/hitta-kontakt/#fastigheter






