Källvägen 17B (Lokal 2502), Malung
Källvägen 17B (Lokal 2502)
Malung
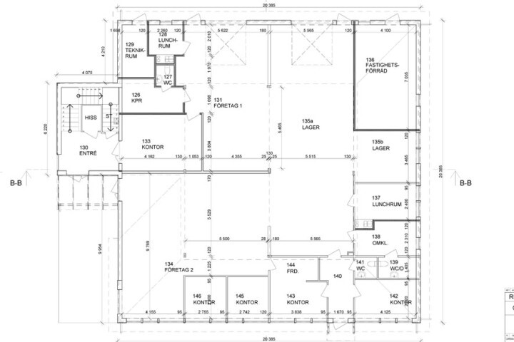
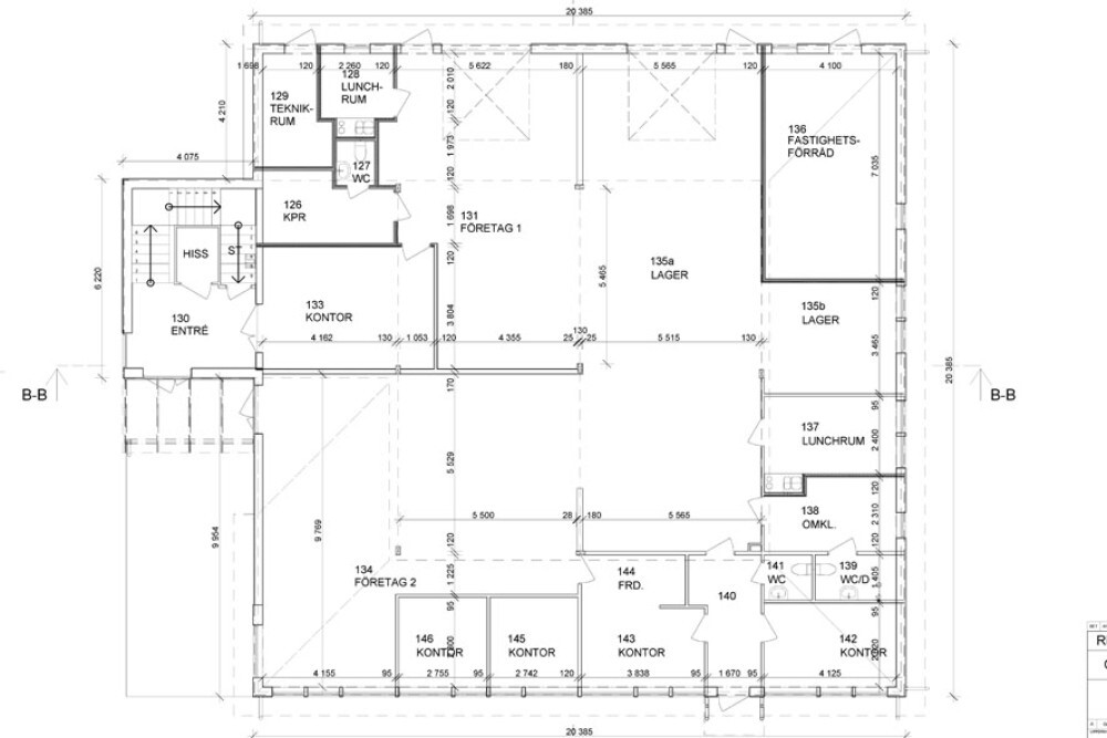
Lokal
Rum:
Uthyrbar yta: 262 kvm
Område: Malung
Andra hyresgäster: Ernst & Young
Bra och välplanerad lokal som idag är kombinerad verkstad och kontor. Två stora portar för smidigt nyttjande av lokalen. Bra parkeringsmöjligheter för både personal som besökare/kunder. Lokalen kan delas av i två mindre lokaler med separata personalutrymmen. Ett trafiknära läge invid E16, väg 66 samt genomfartsled.
Är du intresserad av Källvägen 17B (Lokal 2502)?
Kontakta aktuell förvaltare som du hittar på föregående sida eller via länk https://skoglunds.se/kundservice/hitta-kontakt/#fastigheter





