Källvägen 17B (Lokal 2511), Malung
Källvägen 17B (Lokal 2511)
Malung
Lokal
Rum:
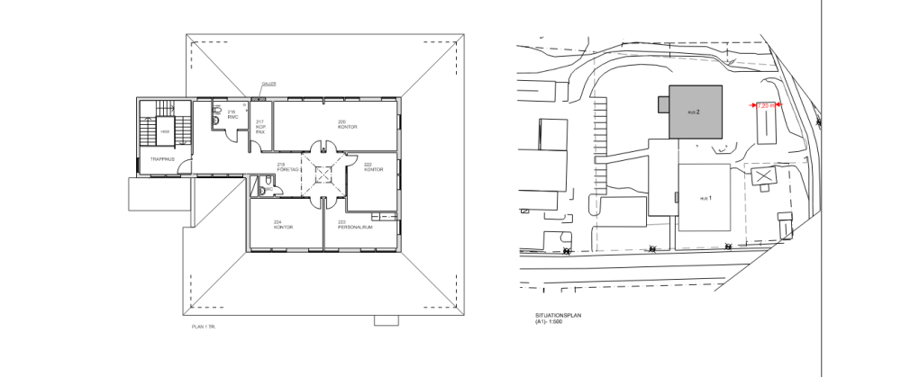
Uthyrbar yta: 172 kvm
Område: Malung
Andra hyresgäster: Ernst & Young
Lämplig som kontor eller någon form av serviceinrättning, ex mäklare, redovisningsbyrå etc. Lokalen har senast används för kontors verksamhet. Lokalen ligger på plan 1 men har invändigt trapphus samt plattformshiss för god tillgänglighet. Bra parkeringsmöjligheter för både personal som besökare/kunder. Ett trafik nära läge invid E16, väg 66 samt genomfartsled.
Är du intresserad av Källvägen 17B (Lokal 2511)?
Kontakta aktuell förvaltare som du hittar på föregående sida eller via länk https://skoglunds.se/kundservice/hitta-kontakt/#fastigheter


