Strandgatan 8 (2501), Mora
Strandgatan 8 (2501)
Mora
Lokal
Rum:
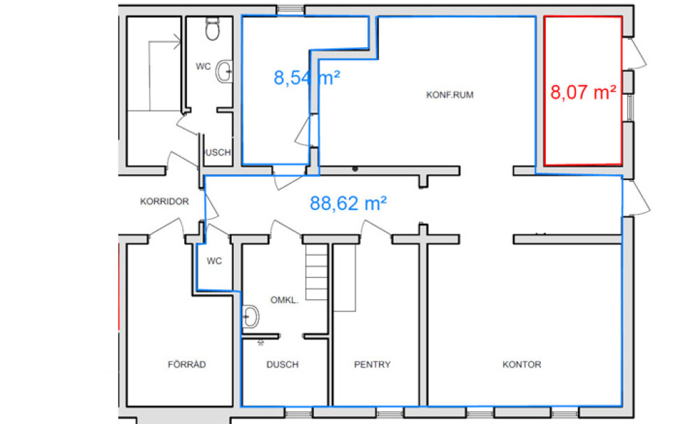
Uthyrbar yta: 97 kvm
Område: Mora
Andra hyresgäster:
Kontorslokal i souterängplan. Kontorsrum, konferensrum, omklädningsrum m dusch, litet fikarum , WC, förråd. Går att hyra till utvändigt förråd om 8 kvm samt ytterligare förråd i källargång.
Är du intresserad av Strandgatan 8 (2501)?
Kontakta aktuell förvaltare som du hittar på föregående sida eller via länk https://skoglunds.se/kundservice/hitta-kontakt/#fastigheter
